Das Österreichereck!

  • I konn schon kane konstruktionszeichnungen mehr segn ! Hob in de letztn tog mein komplettn Kettenförderer (inkl. Detailzeichnungen usw...für de diplomarbeit) im inventor abgleitet in und de berechnungen dazua gmocht :banghead:

    Gesendet von meinem Nexus 4 mit Tapatalk 2

  • ich wollte dich eigentlich mal ganz generös (ja, so sind wir hier im gelobten lande :biggrin:) davon kommen lassen, aber du willst es wohl nicht anders.
    wort du lei, du zniachtl, mei rache werd förchterlich sein! :sneaky:

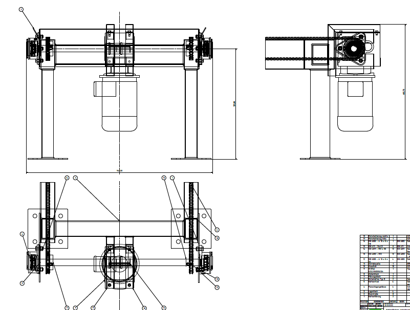
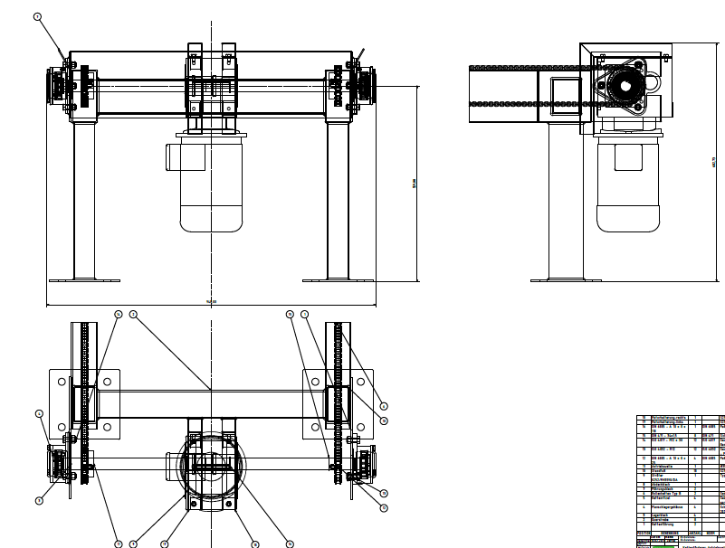
  • Also, des ganze teil is 16,4m lang, deshalb kann i ka bild vom ganzn machn, da würd man nix segn, des is nur de antriebsseite ;) ... hab schon auf A0 schwierigkeiten mit dem teil .. is im Grunde nix spektakuläres, einfach a 16m langer, gerader Förderer für a Sägewerk.
    rechts sieht man a "Kiste" da wean de latten, de im sägewerk im Stapel zum trocknen zwischn de bretter glegt wean zwischen de einzelnen produktionsanlagen hin und her-befördert ..
    De fertigen Bretter wean zu am Stapel aufgestapelt und de latten wean dazwischen eineglegt, dann ummt alles in de trockenkammer und steht da a poa tog. Danoch wean de bretter vorm verpacken wieder ent-stapelt und de latten wean aussortiert und in so a kiste glegt .. danach wean de latten wieder zum aufstapeln gebracht. derzeit habn se es problem, dass de anlage de bretter nit schen in de kiste kreg, d.h. sie verkanten sich und fallen bei da wiedereinfuhr in Stapelprozess von Steigförderer wieder obe und donn muas de anlage gstoppt wean und des kostet holt geld ^^
    is alles a bissl schwer zu erklärn ;)
    Unser aufgabe is es, den Stapelprozess zu optimiern, damit des nerma passiert. der Förderer is nur 1/4 von da gesamten anlage, de aktuellen dateien von der Kollegen hab i grad nit zur hand. de ganze anlage is c.a. 16mx16m
    is noch nit ganz fertig, da betreuer muss übermorgen erst amol drüberschaun ;)
    [attach]788.vB[/ATTACH]
    [attach]787.vB[/ATTACH]

    jez muas i ob mol weiterlernen, morgen wahrscheinlich PRT prüfung :thumbdown:

    ajo, i hoff dass da D sich nit erschreckt bei so viel Dialekt :D

  • Schaugt nach seeeeeeht viel orbeit aus!


    ave frater

    [size=8]-- Beitrag Aktualisiert um 20:35 Uhr -- Vorheriger Beitrag war von 20:35 Uhr --[/SIZE]

    Oa frog wia viel Seiten rechnung san des?

    ave frater

  • Do host leider recht :thumbdown: I bin froh, dass i damit bold fertig bin ... danoch mias ma noch de kompletten Schaltungen für de ganze anlage machn und am bestn sollt ma noch a SPS-Programm dazua schreibn .. dokumentiern mias ma ah alles und de kosten berechnen waret ah net schlecht. de vorigen jahrgänge habn alle so um de 100 Seitn dokumentation bei ihrer diplomarbeit ghob berechnungen, konstruktionen etc ...
    des sollt donn olles bis anfang Mai fertig sein, weil do donn schon de Matura onfongt :0

    also, do muas man amol den motor auslegn (aktuell 0,9kW bei 480Nm und ana Geschw. von 8m/min) für de c.a. 4,5 tonnen de er ziagn muas, dann de wellen (antrieb und gegenüberliegende seite), de zahnräder, ketten (modul,zähnezahl etc...)sollt des gerüst ah noch alles aushalten
    do kummt schon einiges zom ... i muas erst amol alles schen dokumentiern .. des fliagt derzeit noch auf zahlreiche blätter in da gegend umma ^^
    wean schon zwischen 5-10 seitn sein .. wenn nit mehr.. des is oba nur a teil von meim part, de anderen 3 aus meina gruppe müssn ihrs dann ah noch auslegen/berechnen :/

  • Dafuq, dats es nit zeasch dimensionieren, dann rechenen und am schluss zeichen?

    Und was is sps ?

    ave frater

    [size=8]-- Beitrag Aktualisiert um 20:49 Uhr -- Vorheriger Beitrag war von 20:48 Uhr --[/SIZE]

    Aba hut ab und alles guate!

    ave frater

  • sicha, homma wohl so gmocht nur de ganzen berechnungen miasn dann halt schen ah sein .. nit nur irgendane zrissenen zettl .. des weat am ende nämlich gebunden ^^
    i muas nur amol olles nachkontrolliern usw .. des fehlt halt noch :thumbdown:

    A sps is a speicherprogrammierbare steuerung .. da weat sozusagen da komplette ablauf von der anlage einprogrammiert de hat einige I/Os für z.B. sensoren oder sie steuert dann eben über a relais de motoren an usw ..


    KLICK

    hobts ihr in da 5ten nit ah a diplomarbeit/abschlussarbeit zu mochn ?

  • schaug echt guat aus, mein respekt! :thumbup:

    und keine sorge wegen famous. so ein verbohrter und verstockter charakter wie der seinige ist, wie er schon selbst vollkommen korrekt analysiert hat, wie polytetrafluorethylen und lässt gute ratschläge in dem selben masse abprallen wie berechtigte kritik oder massregelung... oder generell alles, was seinen horizont zu übersteigen im stande ist. und dazu gehört nun mal auch der himmlische engelsgesang des gelobten landes aka unser dialekt. :biggrin:

  • A SPS Programm schaut im Programm Manager als Bsp so aus:

    http://www.ob121.com/pic3/fup_pelda_1.png

    alles aus logischen Verknüpfungen (AND, OR, NAND, XOR usw...) aufgebaut und in einzelne module (netzwerke) eingeteilt .. kommt schon einiges zusammen.
    bei uns ist halt das problem, dass wir de Anlage für a Firma planen, d.h. wir hobn nit wirklich die möglichkeit des, wos wir programmieren zu testen ... najo hauptsoch es is gmocht ;)

    Wie gern waret i jez wieda in da 3tn oda 4tn ... kan stress, ka matura, ka diplomarbeit :spitoutdummy:

    hob mir früher falsch ausgedruckt, i hob gmahnt, dass de anderen ihrs ah noch amol nachkontorlliern miasn und dann in a schöne form bringen solltn ;)

  • jo, zusammenbau is in am CAD-Programm jo ka problem .. de ableitungen mochn mir am meisten sorgen ... de ganzen normen, oberflächenangaben usw ... is halt leider schon c.a.3 joah her, dass wir des genau gmocht hobn, deshalb muas i öfters im internet oda im buach nachschaun ... najo weat schon wean ;)

    http://ww3.cad.de/foren/ubb/uploads/manuel_bo/03_K2_W1.jpg

    so wie do z.B. des taugt ma goa net ...

    wenn i in da werkstätte stehn würd und des mochn miast würd i den zettl mit da zeichnung glab i zreissn :D

  • Ah echt ? Wir hobn nur 1 1/2 joah freihand gezeichnet, also nach de Übungen ausm Buch und dann homma ongfongen Acad zeichnen. Bzw in da dritten dann ProE .. wos uns oba ah net wirklich gholfn hat .. de Kenntnisse fürn Inventor hab i mir selber aneignen miasn :thumbdown:

Jetzt mitmachen!

Sie haben noch kein Benutzerkonto auf unserer Seite? Registrieren Sie sich kostenlos und nehmen Sie an unserer Community teil!